Centro polivalente en Adzopé – Costa de Marfil (Africa)
El Centro Polivalente de la Juventud fue encargado en el marco de una misión humanitaria en Adzopé para albergar actividades complementarias del Centro Cultural municipal existente.
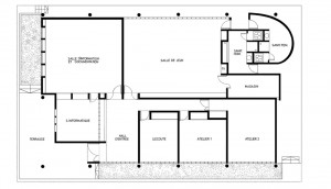
La organización de los espacios interiores del edificio fue concebida en torno al projet de vie de los jóvenes de la ciudad. Está definida por tres escuadras que convergen en un hall. Cada una contiene uno de los sectores de actividades: el sector de inserción profesional; el sector de documentación e informática, y el sector de recreación delimitado por el núcleo de sanitarios exteriores en forma de caracol, símbolo de la ciudad.
El resultado buscado con esta organización fue obtener una planta simple y compacta que respondiera a un criterio de economía, y al mismo tiempo conseguir la más eficaz ventilación y luz natural de los espacios.
Su construcción se llevó a cabo por medio del proyecto de desarrollo social urbano elaborado por la asociación de jóvenes de la municipalidad (UJCAD), en colaboración con la ciudad de Adzopé y las ONG francesas AFVP y Léo Lagrange, con el objetivo de mitigar la ausencia de lugares de actividades, de educación, de capacitación e inserción profesional para los jóvenes de ésta ciudad.
Con la observación de los dispositivos de adaptación al medio de las construcciones locales coloniales del siglo XX, se diseñaron los cerramientos luminosos en celosía blanca.
Su trama, inspirada de los motivos geométricos tradicionales, limita la penetración del sol al interior, filtra la luz repartiéndola como difusores sobre el resto de las piezas,y permite una ventilación cruzada constante. Su utilización permitió ahorrar costos al remplazar la carpintería exterior y los vidrios sobre las fachadas. Los muros son tratados al exterior con el color de la tierra roja local, para que su aspecto dure en el tiempo economizando pintura y para que el edificio se integre al entorno.
Todos los bloques de concreto y celosías fueron moldeados y fabricados en obra. La cobertura principal está sobre elevada cubriendo todo el edificio, y se extiende en volado más allá de sus muros, para proteger de la lluvia, de la radiación solar, y de la penetración del calor evitando el recalentamiento de las fachadas.
Esta se apoya sobre pilotes que la separan del techo secundario propio de los ambientes, dejando la ventilación disipar el calor excedente por su exposición al sol, y manteniendo fresca la temperatura ambiente de los espacios interiores en sombra.
El edificio está construido sobre una plataforma de relleno en tierra para evitar el paso del agua.
Se le implanta en el ángulo oeste del terreno para optimizar su orientación, la ocupación del suelo, la relación directa con los sectores de actividades artísticasy administrativas contiguos, y el nuevo terreno multi-deportivo construido al extremo opuesto.
The Multipurpose Youth Centre was commissioned as part of a humanitarian mission in Adzopé, a town southeast of the Ivory Coast, to accommodate complementary activities of the existing Municipal Cultural Center.
The organization of the building’s interior spaces was conceived around the projet de vie of the city’s youth. It is defined by three right angle dihedrals that converge in a hall. Each of these dihedrals contains one of the sectors of activity: the sector of employment assitance; the sector of documentation and information, and the recreation sector delimited by the exterior core of sanitary facilities in the shape of a snail, symbol of the city.
The intended result of this organization was to obtain a simple and compact plan to respond to a sense of economy, while optimizing natural ventilation and lighting of the spaces.
Le Centre Polyvalent de la Jeunesse a été commandé dans le cadre d’une mission humanitaire à Adzopé, une localité située au Sud-Est de la Côte d’Ivoire, pour y héberger des activités complémentaires du Centre Culturel municipal existant.
L’organisation des espaces intérieurs du bâtiment a été conçue autour des besoins des jeunes de la commune en termes de formation, d’accompagnement socioprofessionnel, et de développement d’activités socio-éducatives et de loisirs. Elle est définie par trois équerres qui convergent dans un hall. Chacune de ces équerres contient l’un des secteurs d’activités : le secteur d’insertion professionnelle; le secteur de documentation et d’informatique, et le secteur de loisirs délimité par les sanitaires extérieurs en forme d’escargot, le symbole de la ville.
Le résultat recherché avec cette organisation a été d’obtenir un plan simple et compact qui réponde à un critère d’économie, et en même temps d’avoir dans les espaces la lumière la plus efficace et la ventilation la plus naturelle possible.









